Rustico in vendita

Saludecio, Via rastello
€ 70.000
6 locali 6 locali
119 Mq 119 Mq
2 bagni 2 bagni

Rustico in vendita

Saludecio, Via rastello

Descrizione annuncio

SALUDECIO

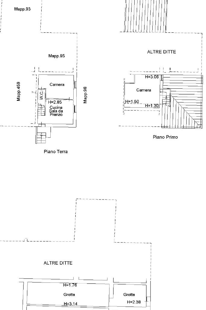
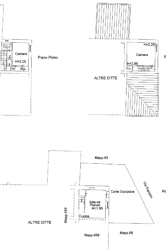
Immerso nel verde delle colline, proponiamo in vendita un rustico totalmente da ristrutturare.

Questa soluzione abbinata offre due soluzioni abitative distinte, perfette per chi cerca spazio e tranquillità.

Con una superficie di circa 120 mq, l'immobile si sviluppa su più livelli, garantendo una distribuzione funzionale degli ambienti.

A dare valore aggiunto alla propriettà troviamo un comodo ed ampio giardino privato che offre uno spazio aggiuntivo ideale per momenti di relax all'aperto ed una grotta da sfruttare a proprio piacimento.

Questa proprietà rappresenta un'opportunità unica per chi desidera vivere in un contesto naturale e nello stesso tempo personalizzabile in base alle proprie esigenze.

Per avere maggiori informazioni o per prenotare una visita chiamaci o mandaci un messaggio Whatsapp al nostro recapito fisso!

Mostra tutto

Nelle vicinanze

Trasporto pubblico Trasporto pubblico
Trasporto pubblico
2,0 Km
Bar Bar
Il ritrovo del Vecchio Forno
2,0 Km
Ristoranti Ristoranti
Agriturismo Venerina
1,8 Km
Agrumaia
1,9 Km
Il Ristoro di Palazzo Viviani
1,9 Km
Osteria dell' Accademia
2,0 Km
Piazza dell' Osteria dell' Accademia
2,0 Km
Mostra tutto

Caratteristiche

Rif.:
61103301
Piano:
Su più livelli di 3
Totale piani:
3
Camere da letto:
4
Arredamento:
Assente
Condizionamento:
Assente
Mostra tutto
Prezzo Prezzo
€ 70.000
Rata mutuo Rata mutuo
€ 330 / mese
Spese annue Spese annue
€ 0
Proponi il tuo prezzoProponi il tuo prezzo

Classe Energetica

Questo immobile è esente da classe energetica
Anno di costruzione:
1900
Riscaldamento:
Assente

Ti interessa visionare l'immobile?

Fissa un appuntamento  Fissa un appuntamento

Richiedi informazioni

Clicca su Leggi per aprire l'informativa
* Questi campi sono obbligatori

Calcola il tuo mutuo

Semplice e senza impegno
Anticipo

( % )
Mutuo

( % )

pochi semplici passi

inserisci i tuoi dati
Questionario completato
Grazie per aver richiesto un appuntamento senza impegno con un nostro Consulente del Credito e Assicurativo.

Hai inserito correttamente tutti i dati necessari e a breve riceverai una e-mail con un link da convalidare per inviare i tuoi dati.
Affiliato
Studio Misano Srl
Via della Repubblica, 56 47843 Misano Adriatico (RN)

Il nostro staff


  • Daniele Uldedaj
    Affiliato

  • Elion Bala
    Collaboratore

  • Carolina Cristiano
    Collaboratrice

  • Eleonora Guidi
    Coordinatrice

  • Federico Orlandi
    Collaboratore
Via della Repubblica, 56 47843 Misano Adriatico (RN)
Zona: Misano Adriatico-Porto Verde-Belvedere-Santa Monica-Misano
Mostra su mappa
Orari: Dal lunedì al venerdì dalle 9 alle 13 e dalle 15 alle 19.30; sabato dalle 9 alle 13 e dalle 15 alle 18
Affiliato
Studio Misano Srl
Via della Repubblica, 56 47843 Misano Adriatico (RN)

2025 Tecnocasa Franchising S.p.A. - P. IVA 08365160152 - Via Monte Bianco 60/A 20089 Rozzano (MI). Ogni agenzia ha un proprio titolare ed è autonoma. Privacy policy | Policy utilizzo | Cookie policy