Villa singola in vendita

Montefiore Conca, Via XI Febbraio
€ 225.000
3 locali 3 locali
123 Mq 123 Mq
1 bagno 1 bagno

Villa singola in vendita

Montefiore Conca, Via XI Febbraio

Descrizione annuncio

MONTEFIORE CONCA- CENTRO STORICO

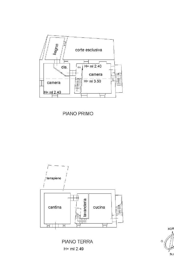
Nel cuore del centro storico di Montefiore Conca, uno dei borghi più suggestivi della Riviera Romagnola, proponiamo una raffinata casa indipendente in pietra, sviluppata su due livelli e perfettamente integrata nel fascino senza tempo del contesto medievale.

Già varcando la soglia si respira un’atmosfera accogliente e autentica: al piano terra ci accoglie una deliziosa cucina, impreziosita da travi a vista che raccontano storie antiche e regalano calore all’ambiente. Qualche gradino sfalsato introduce poi a un soggiorno intimo e caloroso, dove lo stile shabby chic domina con eleganza: ogni angolo è stato curato con amore e attenzione al dettaglio, creando un ambiente che invita al relax e alla convivialità.

Salendo al piano superiore si sviluppa la zona notte caratterizzata da due ampie camere matrimoniali luminose ed ariose.

Completa il livello un comodo bagno finestrato, dotato di box doccia.

A rendere ancora più preziosa questa proposta, una corte esclusiva pavimentata, perfetta per godersi momenti all’aperto in totale privacy, tra fiori, luce e quiete.

Una dimora dal carattere unico, dove il fascino del passato incontra lo stile e il comfort contemporaneo, ideale sia come casa vacanze o per coloro che amano il verde anche come abitazione principale.

Per avere maggiori informazioni o per prenotare una visita chiamaci o mandaci un messaggio Whatsapp al nostro recapito fisso!

Mostra tutto

Nelle vicinanze

Trasporto pubblico Trasporto pubblico
Linea 180
Linea 180
130 m
Scuole Scuole
Scuole
260 m
Farmacia Farmacia
Dispensario Farmaceutico
130 m
Supermercati Supermercati
Alimentari di Rovelli Terenzio
130 m
La Bottega del Cavaliere Ormanno
150 m
Bar Bar
Caffé del Borgo
150 m
Ristoranti Ristoranti
Locanda Donna Costanza
120 m
Baita "La Tiperia"
380 m
Ristorante Antica Gemma
2,9 Km
Il Casolare
2,9 Km
Mostra tutto

Caratteristiche

Rif.:
61103667
Piano:
2 di 2 (Piano su più livelli)
Camere da letto:
2
Arredamento:
Completo
Condizionamento:
Predisposizione impianto
Ascensore:
No
Mostra tutto
Prezzo Prezzo
€ 225.000
Rata mutuo Rata mutuo
€ 1.034 / mese
Spese annue Spese annue
€ 0
Proponi il tuo prezzoProponi il tuo prezzo

Classe Energetica

Questo immobile è esente da classe energetica
Anno di costruzione:
1800
Riscaldamento:
Autonomo
Tipo impianto:
A radiatori
Tipo alimentazione:
Metano

Ti interessa visionare l'immobile?

Fissa un appuntamento  Fissa un appuntamento

Richiedi informazioni

* Questi campi sono obbligatori

Calcola il tuo mutuo

Semplice e senza impegno
Anticipo

( % )
Mutuo

( % )

pochi semplici passi

inserisci i tuoi dati
Questionario completato
Grazie per aver richiesto un appuntamento senza impegno con un nostro Consulente del Credito e Assicurativo.

Hai inserito correttamente tutti i dati necessari e a breve riceverai una e-mail con un link da convalidare per inviare i tuoi dati.
Affiliato
Studio Misano Srl
Via della Repubblica, 56 47843 Misano Adriatico (RN)

Il nostro staff


  • Daniele Uldedaj
    Affiliato

  • Elion Bala
    Collaboratore

  • Carolina Cristiano
    Collaboratrice

  • Eleonora Guidi
    Coordinatrice

  • Federico Orlandi
    Collaboratore
Via della Repubblica, 56 47843 Misano Adriatico (RN)
Zona: Misano Adriatico-Porto Verde-Belvedere-Santa Monica-Misano
Mostra su mappa
Orari: Dal lunedì al venerdì dalle 9 alle 13 e dalle 15 alle 19.30; sabato dalle 9 alle 13 e dalle 15 alle 18
Affiliato
Studio Misano Srl
Via della Repubblica, 56 47843 Misano Adriatico (RN)

2025 Tecnocasa Franchising S.p.A. - P. IVA 08365160152 - Via Monte Bianco 60/A 20089 Rozzano (MI). Ogni agenzia ha un proprio titolare ed è autonoma. Privacy policy | Policy utilizzo | Cookie policy