 
			 
				MISANO MONTE
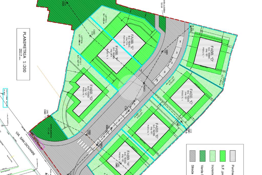
In un contesto residenziale tranquillo, immerso nella quiete ma comodo ai principali servizi, proponiamo in vendita un interessante terreno edificabile pianeggiante di circa 465 mq.
La proprietà si distingue per la sua ottima esposizione e per la possibilità di realizzare una villetta singola tutta su un unico piano, grazie a un indice di edificabilità di circa 101 mq.
Un'opportunità ideale per chi desidera costruire una casa indipendente, su misura, con giardino privato e spazi ben distribuiti.
Il terreno è già servito dalle principali utenze: luce, gas, acqua, e risulta già collegato alla rete fognaria, rendendo l’avvio dei lavori ancora più semplice e veloce.
Una soluzione perfetta per chi cerca indipendenza, comfort e la serenità di una zona residenziale ben abitata.
Per avere maggiori informazioni o per prenotare una visita chiamaci o mandaci un messaggio Whatsapp al nostro recapito fisso e sarai ricontattato!
Ti interessa visionare l'immobile?